WB Schule Safenwil

Situation hp
EG mit Umgebung hp
Ansicht Nord hp
Halle hp 4x3

WB Schule Safenwil

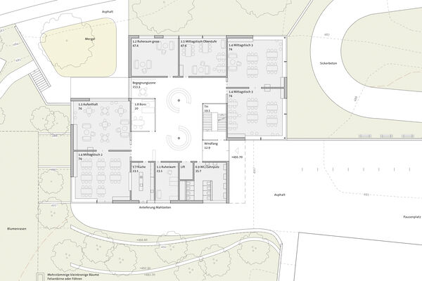
Hoch über dem Wieshang liegt das alte Schulhaus von Safenwil auf einer Terrasse, östlich flankiert vom Primar- und Oberstufenschulhaus. Der Neubau ergänzt diese Abfolge behutsam: westlich platziert, hält er den Blick von der Dorfstrasse auf das historische Schulhaus frei und vervollständigt zugleich die bauliche Kette. Entlang der Strasse entsteht ein neuer, einladender Platz mit direktem Zugang zu Aula und Bibliothek – ein lebendiger Übergang zwischen öffentlichem Raum und schulischem Alltag.

Im Inneren öffnet sich das Gebäude zu einer grosszügigen Halle mit zentralem Treppenhaus. Tageslicht fällt von oben durch alle Geschosse und macht die Halle je nach Nutzung zum Foyer, zum Ort der Begegnung oder zum erweiterten Lernraum.

Projektwettbewerb

Offenes Verfahren

Projektbeteiligte

Katrin Jungblut, Claudia Hoppler, Fred Zimmerli, Bryan Wiederkehr

Landschaftsarchitektin

Pascale Akkerman, Xeros Landschaftsarchitektur

Visualisierung

OVA studio